Sketching time

02.03.26

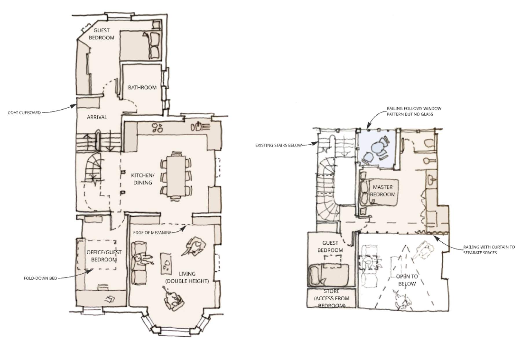
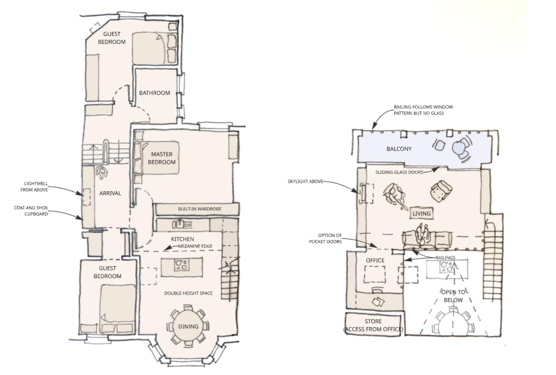
We’re excited to be sketching ideas for this lovely first-floor flat in a converted Edwardian house (circa 1900–1905). The project includes extending into the loft under the approved planning application, upgrading the existing flat, and rethinking the layout to create a beautiful, light-filled home.

Our design approach will respect the Edwardian character while introducing contemporary, open-plan living. We’ll maximise natural light, explore two to three bedrooms, flexible workspaces, bathrooms, and clever storage. The cupola roof and rooflight offer opportunities to add characterful, inspiring spaces, while we also manage acoustic considerations from the nearby railway.

Sustainability is central to the project. We’ll focus on energy efficiency, Passivhaus design, natural and low-carbon materials, water efficiency, and biodiversity, all while keeping the home healthy, adaptable, and full of charm.

Throughout, we collaborate closely with the client using 3D models and online platforms, ensuring a design process that is transparent, creative, and fully co‑designed.

Which option would you choose?

Back to news
Option 1

Option 1

Option 2

Option 2

Option 3

Option 3